<center><b>New for 2023 Season</b><br>A 3% surcharge will be added<br>to all Credit Card payments.</center>

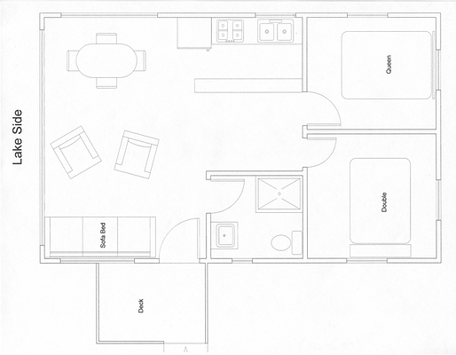
CABIN #3 - SPRUCE

Capacity 4

2 bedrooms plus futon. Knotty pine interior, living/dining combination. Wall of windows looking over lake. AIR CONDITONED (Beds; 2 queen) Capacity 4*

Closed
Available
Reserved
Selected

Capacity

A cabin may have up to 2 additional guests (sleeper sofa) over the base capacity for an extra person charge of $35/night or $175/week for each person.

Reservations

Our weeks run Saturday to Saturday during Main Season. Short Stays are available in Spring and Fall – 2 night minimum. During Main Season if a cabin is available, short stays may be booked within 2 weeks before the arrival date at a rate of 1/6 of the weekly rate per night (3 night minimum).

Amenities

Available for your use without charge are: wireless high speed internet, fire pits, 24 hour use of lodge with TV, movies, books, life jackets, paddle boats, kayaks, various water & beach toys, exercise room, minnow buckets, fish basket, landing net, volleyball, horseshoes, shuffle board, holey board, basketball, puzzles, board games, pack 'n play and high chair. Coin operated laundry. Complimentary coffee/cappuccino/hot chocolate hour each morning and beautiful sunsets.

Deposits

The Week Stay deposit is $200 per bedroom. Short Stay deposit is one nights rate. If you cancel, the deposit, less a $100 cancellation fee per cabin, will be refunded only if the cabin is re-booked for the entire length of the stay.

Boats/motors and dock charges

Please reserve in advance, so you won't be disappointed.

Pontoon: 18' Forester/28hp motor $450 for week, $135 for day, $90 for ½ day, plus gas.

14' Lund fishing boats with brand new 2015 Mercury 9.9 motors, and new high end swivel seats: $250 per week or $50 day, plus gas.

Launch Ramp & dock space for your boat: $60 per week or $13 per day.

Electronic Fish Finder: $30 per week or $6 per day.

TV/DVD Combo with unlimited movie use: $30 per week or $6 per day.

Towel Rental: $12 per set (kitchen & 2 baths), $5 for additional bath set.

Check In and Check Out

Please no early arrivals. We need every minute to see that your cabin is properly cleaned.

Weekly Guests: Check In – after 3:00 PM & Check Out – by 9:00 AM

Short Stay Guest: Check In – after 1:00 PM & Check Out – by 10:00 AM

Registration & Visitors

In accordance with the Minnesota Innkeepers Law all guest & all visitors must register upon arrival. For the privacy and security of all of our guests, please let us know if you are expecting visitors. We reserve the right to limit the number of visitors and will charge $15 per day per visitor.

Damage/Cleaning Deposit

We are very proud of our reputation for providing you with a clean and comfortable cabin. In return we ask that you check out leaving your 'housekeeping cabin' in the same condition as you find it. If your cabin is left excessively dirty and requires extra cleaning or if any property damage occurs, you will be charged. All of our buildings are NO SMOKING!

For the safety and enjoyment of all our guest we do not allow pets, jet skis or fireworks. We ask that you observe quiet hours of 11:00 PM to 8:00 AM.

Big Timber Lodge
25004 State 87
Nevis, MN 56467
bigtimberlodge@gmail.com
218 732 3607